Luminoso Appartamento di Nuova Costruzione in Vendita a Corbara
Luminoso Appartamento di Nuova Costruzione in Vendita a Corbara
🏡 Luminoso Appartamento di Nuova Costruzione in Vendita a Corbara – Prima Abitazione, No IVA
Scopri questa esclusiva opportunità immobiliare nel cuore tranquillo di Corbara, a pochi minuti dal centro ma in una zona riservata e silenziosa.
Proponiamo in vendita diretta da privato – senza IVA – un elegante appartamento mai abitato, situato al primo piano di un moderno fabbricato di recente costruzione, dotato di ascensore e tecnologie ad alta efficienza.
✨ Caratteristiche principali
-
✅ Nuova costruzione – mai abitato
-
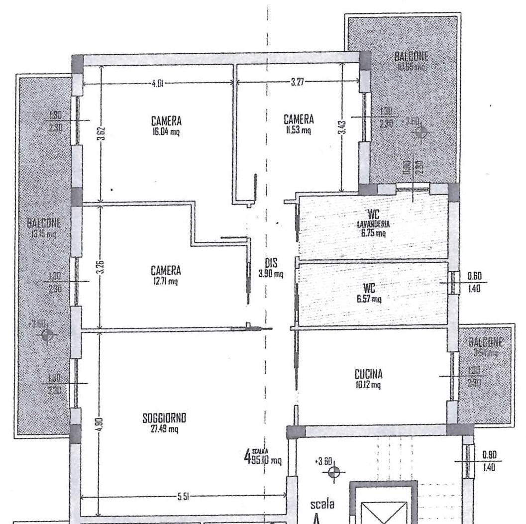
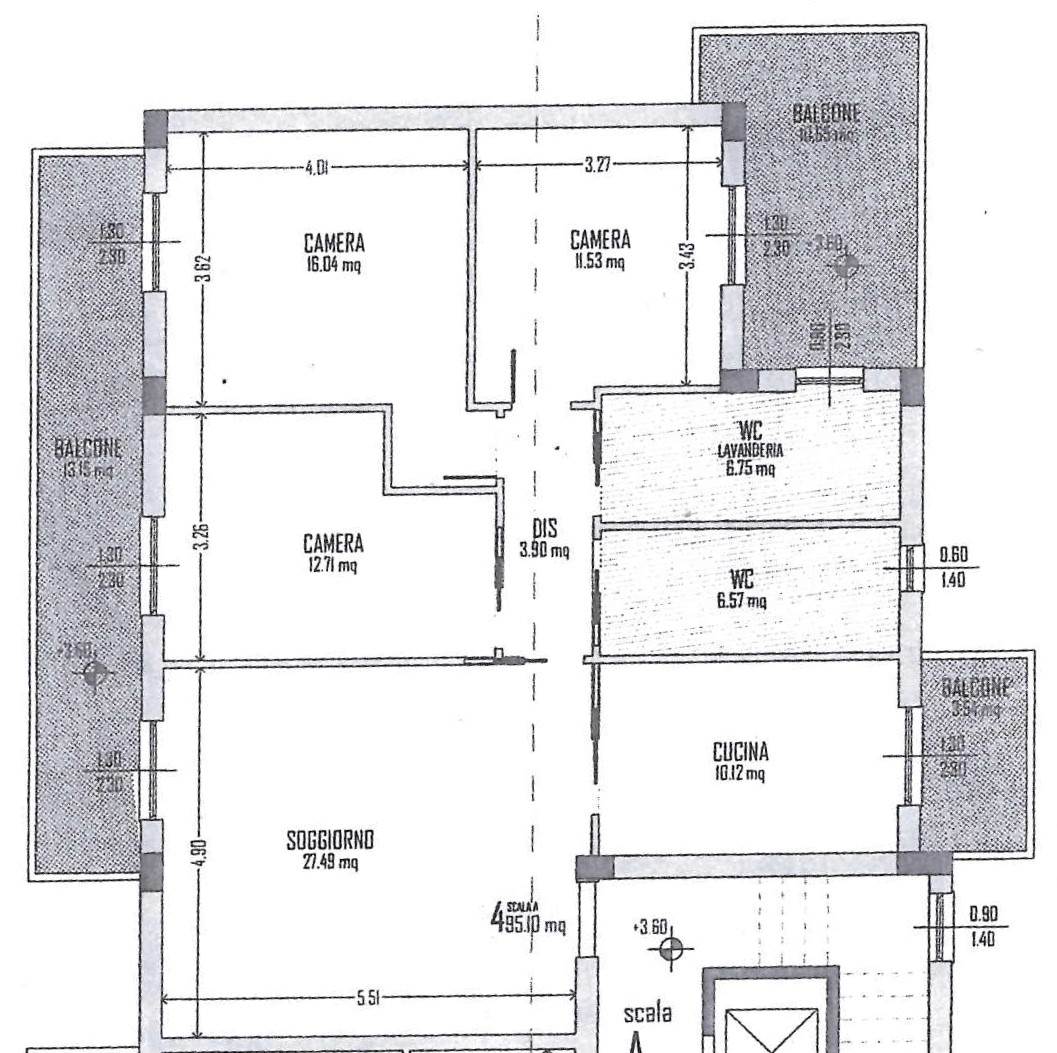
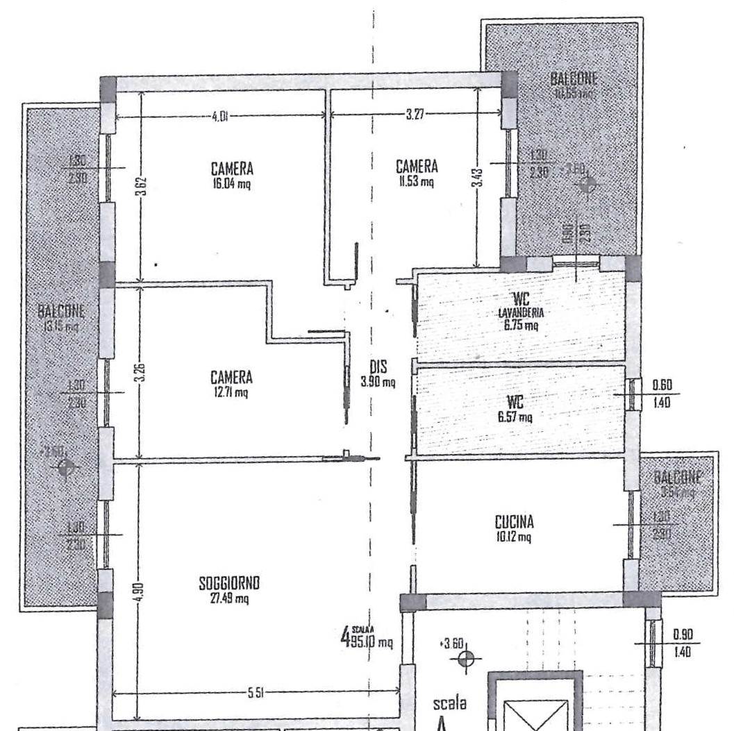
✅ Ampio salone luminoso con accesso a terrazzino vivibile
-
✅ Cucina semi-abitabile funzionale e ben distribuita
-
✅ Zona notte separata con 3 camere da letto (1 matrimoniale + 2 camerette)
-
✅ Doppi servizi moderni e ben rifiniti
-
✅ Tripla esposizione (est – sud – ovest) per una luce naturale costante
-
✅ Balconate ampie e terrazzino ideale per relax all’aperto
-
✅ Box auto privato con serranda elettrica
-
✅ Posti auto pubblici disponibili su entrambi i lati del fabbricato
♻️ Comfort e tecnologia
-
Riscaldamento e raffrescamento con impianto a pompa di calore
-
Pannelli fotovoltaici condominiali per maggiore efficienza energetica
-
Infissi e finiture moderne, ambienti spaziosi, ottimo isolamento termico/acustico
🏦 Hai bisogno di un mutuo? Ti aiutiamo noi!
Acquistare casa non è mai stato così semplice:
Offriamo consulenza mutuo gratuita grazie alla collaborazione con Credipass, uno dei principali partner del credito in Italia.
✅ Ti aiutiamo a verificare la fattibilità
✅ Calcoliamo la rata ideale
✅ Troviamo il miglior tasso per te
📍 Posizione: Corbara (SA) – zona residenziale, tranquilla e ben collegata
📞 Contatti:
📱 Cell. 349 2573284
☎️ Tel. 081 0284415
📆 Prenota subito la tua visita!
Il tuo nuovo inizio ti aspetta a Corbara: moderno, efficiente, luminoso… e pronto per essere tuo!
Share











Disegna il mutuo su misura per te
Simula il tuo mutuo in tempo reale
Hai trovato la casa giusta?
Calcola subito quanto potresti pagare ogni mese, senza impegno.
Grazie alla collaborazione con Credipass, puoi simulare la rata del mutuo in base al prezzo dell'immobile e ricevere una consulenza gratuita da un esperto.